DUPLEX CONVERSION PROJECT IN BRAGA

  • Customer: Privado
  • Year: 2024-2025
  • Location: Braga
  • Sector: Residential
  • Phase: Construction

Residential renovation and architectural transformation located in Braga, Portugal.

The existing property consisted of an old style apartment combined with a large garage and storage area, with significant unused potential.

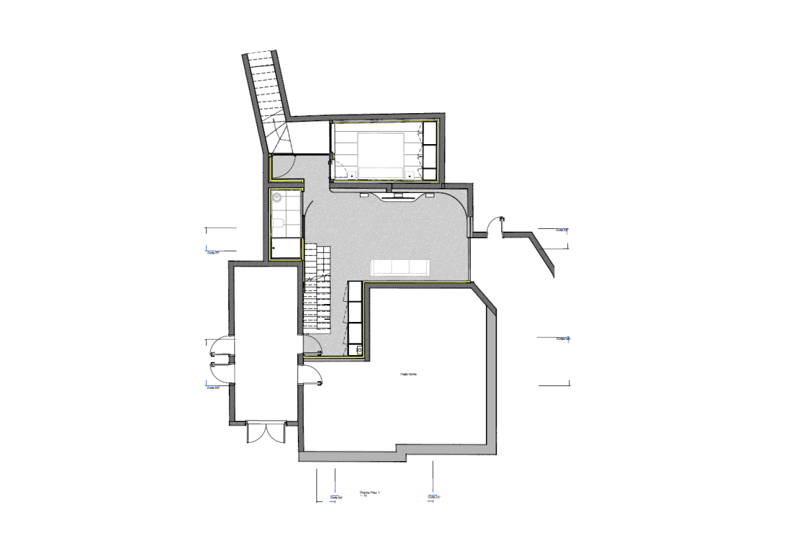
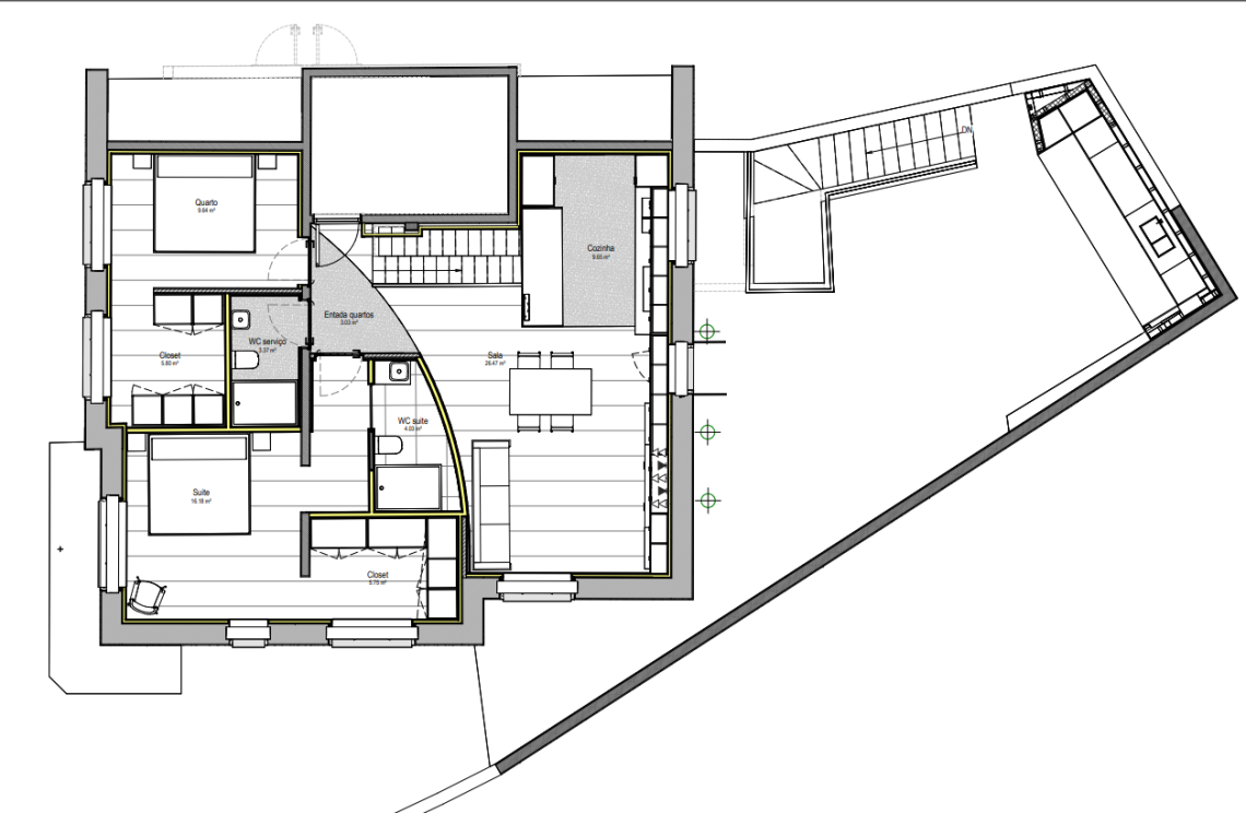
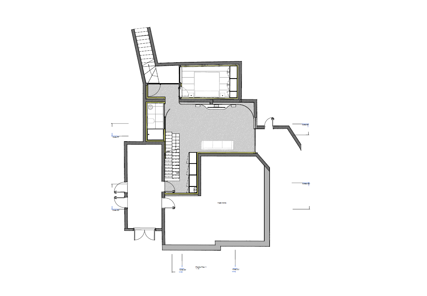
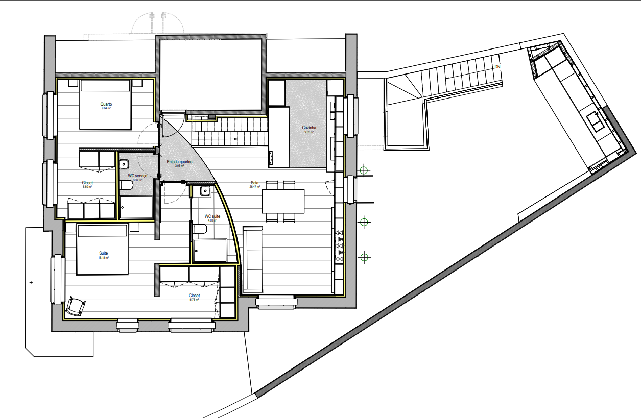
The architectural intervention focused on converting this fragmented layout into a cohesive and functional duplex apartment, transforming non habitable space into high quality living areas. Rather than expanding the building footprint, the project works entirely within the existing structure, reinforcing a sustainable and city focused approach to housing.

The design strategy was based on three main principles. spatial reorganization, natural light optimization, and material warmth. By redefining levels and vertical connections, the project establishes a clear separation between social and private areas while maintaining visual continuity and comfort.

Careful attention was given to daylight, proportions, and circulation, ensuring that the new duplex feels calm, efficient, and intuitive to live in. Material choices reinforce a warm and contemporary atmosphere, supporting everyday use rather than visual excess.

This project reflects our architectural approach to renovation in historic and consolidated urban areas. Architecture as a tool for transformation, reuse, and urban regeneration. By converting underused spaces into meaningful homes, projects like this contribute directly to the revitalization of cities and more responsible residential development.

 

Every project is unique - just like yours. Let’s discuss your vision and provide a personalized budget to bring it to life?

REQUEST YOUR BUDGET

You are using an outdated browser. Please upgrade your browser to improve your experience.